아파트는 수많은 세대를 한정된 공간에 효율적으로 수용할 수 있는 장점으로 도시 인구 집중이 큰 우리나라에서 가장 흔히 볼 수 있는 주거 형태다. 천편일률적인 아파트 천지에서도 특이한 시도를 했던 건축 사례들이 있다.

산업화 시기를 대표하는 아파트단지인 '한강맨숀'
6.25전쟁 종전 후 산업화 시기에 도심에 집중되는 인구와 이 과정에서 오는 주택문제를 해결하기 위해 아파트는 계속해서 연구되고 지어지면서 끝내 한국 특유의 주거문화로 자리잡았다.

현대에는 전 국민의 반 이상이 아파트에 살고 있을 정도니...
(50.1%, 2018인구주택총조사, 통계청)
우리나라는 가히 아파트의 나라라 할 수 있을 것이다.

문제는 우리가 보기엔 개성 하나 없이 우후죽순 들어서있기에 이러한 20세기 아파트를 닭장, 성냥갑과 같은 명칭으로 부르며 비하하기도 하는데 사실 수십년 전부터 다양한 시도를 해본 특이한 아파트들이 있다는 사실을 당신은 알고 있는가?
여러가지 시도를 해본 특이한 아파트들에 대해 한 번 알아보도록 하자
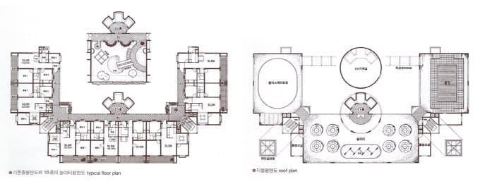
망미주공아파트 (1986)
80년대 주택공사의 실험정신을 보여주는 망미주공아파트는
처음 보는 사람에게 저게 주공이 맞나 싶은 디자인을 뽐내는 아파트다

마당 낀 테라스동을 품고 있다는 점

107동부터 110동까지 35평으로 이루어진 40세대의 테라스동을 보고 있자면
이걸 어떻게 주공이 80년대에 지을 생각을 했나 싶다 그리고 벌레 으악..
택배기사도 으악...

상계주공4단지아파트 (1988)
여타 주공아파트와 별 다를바 없는 모습이기에 뭐가 특이하다는 건지 모르겠지만
우리나라 최초의 초고층 아파트인 412동이 이 파트의 주인공이다


국내 최초의 25층 아파트이자 (최초로 초고층 아파트로 분류되었다)
건설 당시 노원에서 가장 높은 건물이라는 점 때문에 상계주공 412동에는 옥상에 군 방공진지와 헬기장이 자리잡게 되었다.

그 외에도 16층부터 18층 사이에 어린이 놀이터가 지어져 구멍이 뻥 뚫린 모습이 인상적이다.
(소음문제로 인해 지금은 폐쇄되었다)

번외로 이 상계주공 412동은 선유도공원의 설계자인 조성룡 건축가의 설계인데
조성룡 건축가는 설계 공모에서 우승했지만 실제로 지어지고 있다는 사실은 모르고 있었는데
몇년 뒤 412동만 계획대로 덩그러니 지어져 있었다는 후문이 있다


문정시영아파트 (1989)
문정시영아파트는 8, 9 ,10동이 패럴림픽 선수촌으로 쓰였다.

이 때문에 1층부터 옥상까지 휠체어용 경사로가 설치된 신기한 모습을 볼 수 있으며 이외에도 화장실 턱이 없는 등 장애인을 위한 설계가 들어간 우리나라 최초의 아파트다.

이외에도 한강변에 위치한 압구정 현대, 청담 삼익아파트 등은 유사시 북괴의 남하를 막기 위해 한강을 바라보는 쪽에 기관총을 거치할 수 있는 총안구가 뚫려있는 등. 옛날 아파트들도 전쟁과 같은 여러가지 이유로 지을때 특이한 시도를 한 경우가 있음을 알 수 있다.
(심지어 대전차 방호벽 용도로 지어진 아파트도 있다)


종로 포장마차의 몰락 (MZ 핫플레이스?)
역대급 '바가지 비판' 60여 곳 영업 중단 정비 기간을 갖고 상인들 "가격정찰제·카드결제 추진 중" 종로 핫플레이라고 부르던 종로 포장마차는 중년에게는 낭만과 추억, MZ에게는 자유와 개방감
news.memebro.kr
손흥민 열애설의 공통점
축구선수 손흥민과 김고은의 열애설 둘의 열애설로 보는 손흥민의 전 여친들이 소름돋는 공통점이 눈길을 끌고 있다. 지난해 대한민국의 밤을 응원 열기로 뜨겁게 만들었던 카타르 월드컵이 끝
news.memebro.kr
유튜브 '술방'에 '칼' 빼든 정부
광고 시장에서도 술은 엄격하다. 그만큼 사건 사고를 만들고 미성년 보호에 취약하기 때문이다. 하나가 열개가 되고 100개가 되면 제어 안되니까.. 그런데 정말 재밌는 것도 사실... 정부, ‘미디
news.memebro.kr
게임업계 사상검증, 성인지감수성 조사
오랜만에 콘진원이 업무다운 업무를 하는 느낌 효율이 얼마나 있을지는 모르겠지만, 시도는 좋다고 생각된다. 내년 게임업계·이용자 실태조사에 관련 항목 조사 추진 전문가 논의 후 최종 확정
news.memebro.kr




